Add

Vierasmaja 34 mm ja 45 mm

Vierasmaja

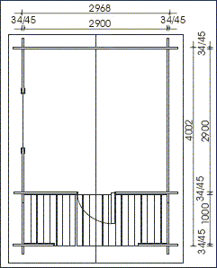
Vierasmaja pohjakuva

Pohjamitat:
2900 mm X 2900 mm + 1000 mm terassi
Seinäkorkeus 209 cm
Harjakorkeus 256 cm

Toimitus sisältää:
Seinähirret, lattia- ja kattolauta, lattiavasat, ovi, ikkunat, naulat, räystäs- ja päätylaudat, terassilaudat sekä kattohuopa.

Pakkauksen mitat:
450 cm X 110 cm X 60 cm (Paino n.800 kg)

34 mm 45 mm