Add

SaunAki 3

SaunAki 3

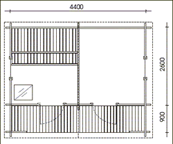
SaunAki 3 pohjakuva

Pohjamitat:
4400 mm X 2600 mm +
900 mm terassi
Seinäkorkeus 196 cm
Harjakorkeus 253 cm

Toimitus sisältää:
Seinähirret, lattia- ja kattolauta, lattiavasat, ovet, ikkunat, naulat, räystäs- ja päätylaudat, terassilaudat, laude-elementit sekä kattohuopa.

Pakkauksen mitat:
470 cm X 110 cm X 120 cm
(Paino n.1500 kg)

45 mm